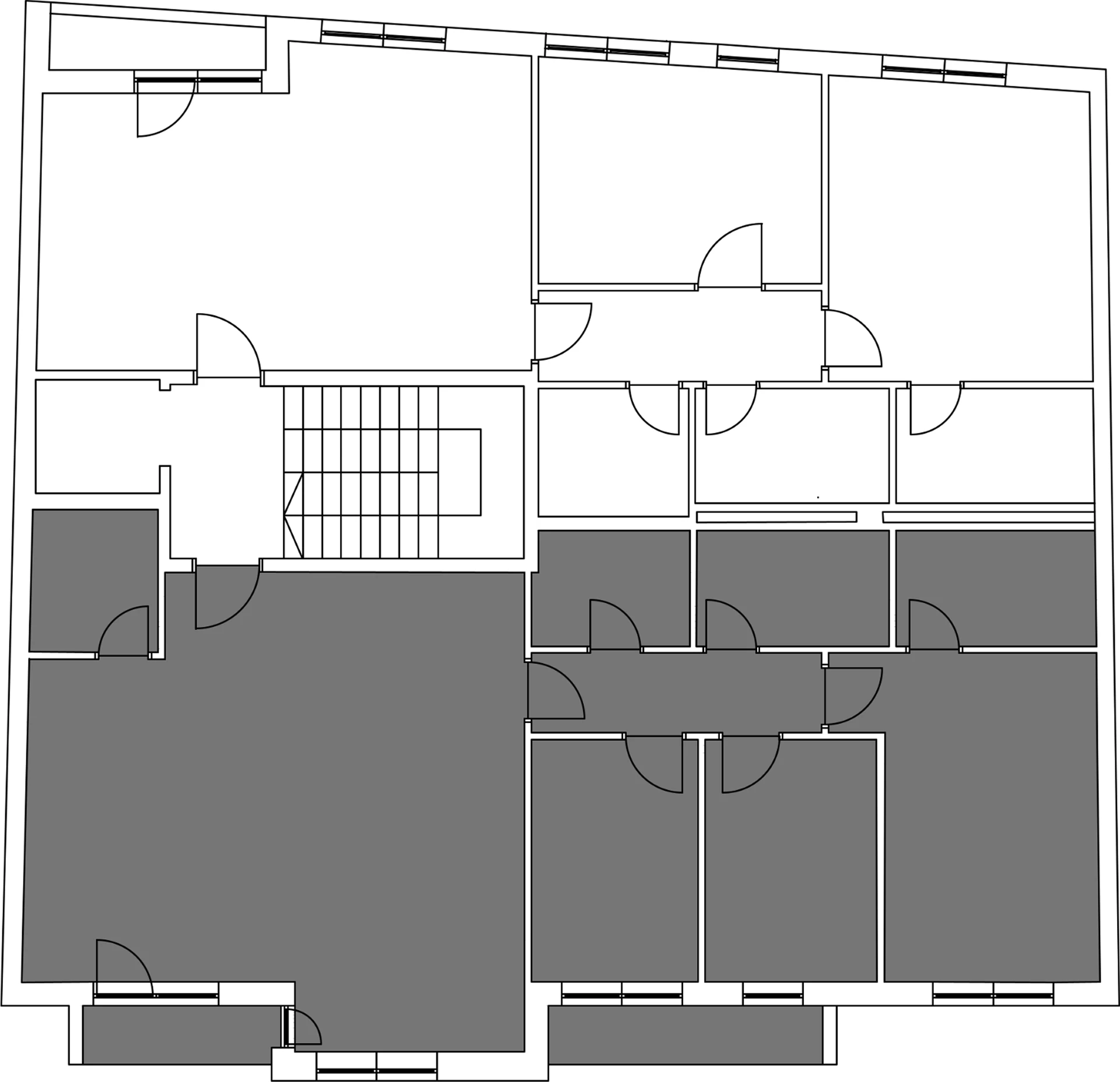
FOUR-BEDROOM

100.79m2

Floor: VI

This 100m² four-bedroom apartment offers a large, bright living room connected to the dining area, ideal for family gatherings. The kitchen is functionally positioned, and the layout includes three comfortable bedrooms, including a master with a private bathroom. Two terraces provide additional outdoor space and privacy.

The layout and high-quality finishes make this apartment suitable for families seeking a modern, spacious, and functional home or a high-quality investment.

The apartment includes:

  • Three spacious bedrooms, including a master with a private bathroom
  • Two additional modern bathrooms
  • Two terraces for relaxation and privacy
  • Large living area suitable for socializing
Room table

Entrance hallway

6.27m2

Living room, kitchen, dining area

36.01m2

Hallway

2.54m2

Toilet

3.49m2

Bathroom

4.32m2

Bedroom

8.10m2

Bedroom 2

8.33m2

Master bedroom

15.04m2

Master bathroom

4.44m2

Storage

3.70m2

Terrace

2.68m2

Terrace 2

3.87m2

TOTAL

100.79m2

stan 100

Browse other apartments

sold out

ONE-BEDROOM

Area: 38.34 m2

Type: One-bedroom

Floor: I, II, III, IV, V

more details
sold out

TWO-BEDROOM

Area: 59.29 m2

Type: Two-bedroom

Floor: I, II, III, IV, V

more details

THREE-BEDROOM

Area: 78.13 m2

Type: Three-bedroom

Floor: I, II, IV, V, VI

more details
sold out

ONE-BEDROOM

Area: 38.34 m2

Type: One-bedroom

Floor: I, II, III, IV, V

more details
sold out

TWO-BEDROOM

Area: 59.29 m2

Type: Two-bedroom

Floor: I, II, III, IV, V

more details

THREE-BEDROOM

Area: 78.13 m2

Type: Three-bedroom

Floor: I, II, IV, V, VI

more details

PENTHOUSE

Area: 182.72 m2

Type: Penthouse

Floor: VII

more details